דירה להשכרה

לאנשים נחמדים בלבד

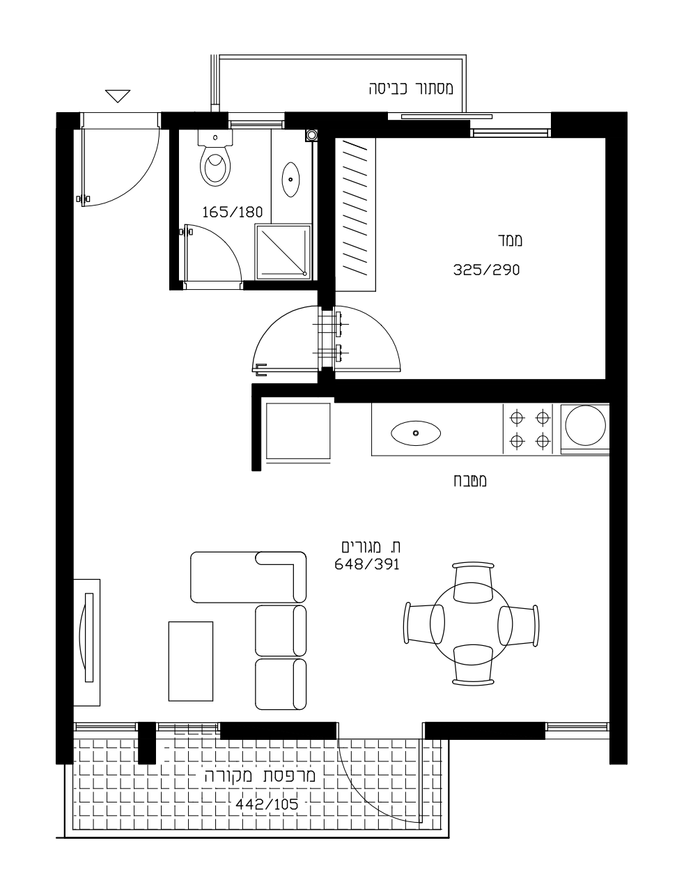
הדירה

  • דירת שני חדרים, 52 מ״ר פלוס מרפסת שמש 6 מ״ר
  • דמי השכירות: 4500 ש"ח לחודש
  • דירה מושקעת, בסטנדרט בניה גבוה
  • מתאימה ליחיד/ה או לזוג
  • חניה צמודה, רחבה, מקורה, מוארת בלילה, ללא מכפיל
  • מעלית, אינטרקום עם מצלמה
  • מזגן מיני מרכזי
  • שני כיווני אויר, בריזה גם בקיץ
  • שקט נפשי: תרשים הדירה והחוזה מפורסמים ממש כאן

מסמכים

על מנת שתוכלו לעשות את החלטה הכי מושכלת, תמצאו כאן את כל המסמכים הרלוונטיים לשכירת הדירה

תוכנית הדירה

פורמט גדול

חוזה שכירות

מיקום מצוין

הדירה בשכונת מזרח נווה שאנן המתחדשת, במיקום מרכזי בתל-אביב.

גישה מהירה למרכזי בילוי, תחבורה, וצירי תנועה ראשיים.

איפה בדיוק ?

צרו קשר

אם אתם מתעניינים לשכור את הדירה, אנא כתבו לי במייל: apartment@guyhoffman.com